We are an Australia Based Business

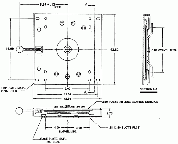
Seats Inc- Swivel Assembly

104273
  • Description
Heavy Duty Uni-Swivel feature 360? rotation with 90? locking intervals. Uni-Swivel feature a durable powder coating finish for long rust and corrosion protection.